Afgørelse om reduktion af skovbyggelinje i et område omfattet af lokalplan 689 Boligområde ved Skovparken, Stevnstrup Nord
Miljøstyrelsen har efter naturbeskyttelseslovens § 69, stk. 1 truffet afgørelse om at reducere skovbyggelinjen inden for lokalplanområdet.
Afgørelse
8870 Langå
1. januar 1
29. maj 2024
Miljøstyrelsen har den 28.05.2024 truffet afgørelse om reduktion af naturbeskyttelseslovens skovbyggelinje inden for lokalplan 689 Boligområde ved Skovparken, Stevnstrup Nord.
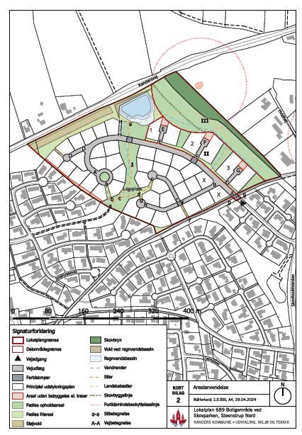
Hele området er omfattet af skovbyggelinjen, da det ligger indenfor 300 m fra Fladbro Skov, som på dette sted ejes af Randers Kommune.
På baggrund af ansøgning fra Randers Kommune, reducerer Miljøstyrelsen skovbyggelinjen svarende til 30 meter mod nordøst (grøn stiplet linje) og 22 meter mod nordvest (lokalplanafgrænsning).
Skovbyggelinjen er reduceret for matr.nr. 7x og del af matr.nr. 23d begge Stevnstrup By, Grensten.
Afgørelsen kan ikke påklages.
Afgrænsning af skovbyggelinjen

