Screeningsafgørelse om miljøvurderingspligt på etablering af 40.000 m² oplagsplads på Karlsbergvej i Sdr. Borup
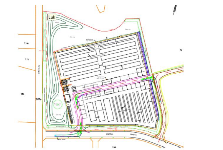
Randers Kommune har vurderet, at etablering af ca. 40.000 m² oplagsplads til centerlager for varer med tilhørende mandskabsbygning ikke vil kunne påvirke miljøet væsentligt og derfor ikke er omfattet af krav om miljøvurdering.
VVM-afgørelse
8940 Randers SV
8. januar 2026
11. december 2025
Vurderingen er fortaget i henhold til § 21 i miljøvurderingsloven og gælder på matr. nr. 1u Sdr. Borup By, Haslund beliggende på Karlsbergvej 31, 8940 Randers SV.
I vurderingen er der lagt vægt på, at det berørte areal er omfattet af lokalplan nr. 523 "Erhvervsområde Syd for Sdr. Borup", hvoraf det fremgår, at der kun må opføres eller indrettes bebyggelse til – eller udøves – erhverv som følgende: industri- og større værkstedsvirksomhed samt entreprenør- og oplagsvirksomhed, herunder engroshandel. Projektet vurderes derfor ikke at medføre væsentlige ændringer i områdets karakter.
Situationsplan

