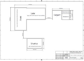
Landzonetilladelse til at opføre en carport med et integreret udhus på 78 m² på Fussingøvej 15, 8920 Randers NV
Randers Kommune har meddelt landzonetilladelse til at opføre en carport med et integreret udhus på 78 m² på matrikel 3H Ålum By, Ålum beliggende Fussingøvej 15, 8920 Randers NV
Annoncering - Planlægning
Typeasd
Landzonetilladelse
Område
8920 Randers NV
Klagefrist
5. november 2025
Offentliggjort
7. oktober 2025
Landzonetilladelse til at opføre en carport med et integreret udhus på 78 m² på matrikel 3H Ålum By, Ålum beliggende Fussingøvej 15, 8920 Randers NV.
I vurderingen er der lagt vægt på, at det ansøgte kan tillades i overensstemmelse med de hensyn, der skal varetages ved administrationen af planlovens landzonebestemmelser.
Beliggenhedsplan

