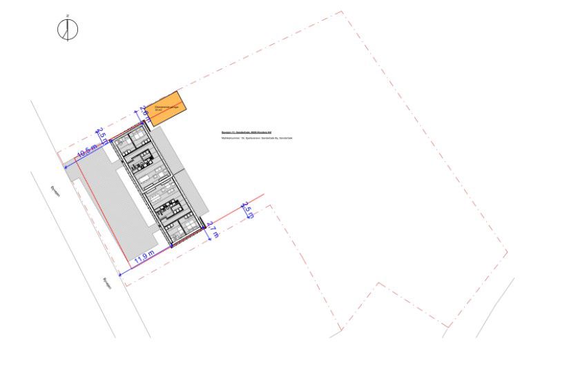
Landzonetilladelse til at opføre et dobbelthus på 175 m², Byvejen 11, 8920 Randers NV
Randers Kommune har meddelt landzonetilladelse til at opføre et dobbelthus på 175 m² på Byvejen 11, 8920 Randers NV
Annoncering - Planlægning
Type
Landzonetilladelse
Område
8920 Randers NV
Klagefrist
1. marts 2026
Offentliggjort
29. januar 2026

Tilladelsen er givet i henhold til planlovens §35 og gælder på matr.nr. 15R Sønderbæk By, Sønderbæk beliggende Byvejen 11, 8920 Randers NV.
I vurderingen er lagt vægt på, at det ansøgte kan tillades i overensstemmelse med de hensyn, der skal varetages ved administrationen af planlovens landzonebestemmelser.